樁基礎設計例(一)

☆ 美 好 譯

一、前言

         本設計例係針對可能發生液化之地盤,支承鋼筋混凝土壁式橋墩之場鑄樁基礎的情況,自震度(seismic intensity)法至以地震時極限側向強度(ultimate lateral strength during earthquakes)做耐震設計之過程,尤其著重於地震時極限側向強度,加以詳細說明。

二、設計條件

(一)橋梁形式與橋墩基礎
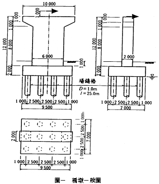
         設計之橋梁形式如圖一所示之橋梁中間橋墩之基礎。
         上部構造  5跨度間連續PC中空橋面板
                (寬度w=12.0m,長度 L=5×28.0m)
         下部構造  鋼筋混凝土壁式橋墩(水平反力為分散形式)基礎構造 場鑄樁(樁徑D=1.0m,樁長l=25.0m)
         此橋梁耐震設計之重要度、地域區分及耐震設計上之地盤類別如表一所示。

(二)材料常數
         橋墩•底座與基礎(場鑄樁)之材料常數如表二及表三所示。

(三)地盤條件
         地盤條件示於圖二及表四。依液化之探討,因土壤常數為0之土層不存在(詳見後述),故耐震設計上之地盤面設定為底座下面。

(四)上部構造反力與重量
         設計橋墩之上部構造反力與重量如表五所示。

三、設計水平震度

(一)耐震設計上之地盤類別
         依道路橋示方書Ⅴ第3.6節,自圖二,將支承層之砂礫層上面設定為基盤面,其表層地盤之特性質TG
        
         因TG>0.6 sec,故屬Ⅲ類地盤。
(三)設計水平震度
         根據震度法、地震時極限側向強度法(或稱韌性法,ductility method)之耐震設計,設計水平震度於求得橋梁之固有週期T後,由下式求出。
         震度法        kh=cz kh0
         地震時極限側向強度法 khc=cz khc0
         求固有週期所用之設計振動單位之模式化時,於橋墩在震度法用全斷面有效剛性;在地震時極限側向強度法用屈伏剛性。另一方面,於基礎則不論在震度法或地震時極限側向強度法,樁本體之全斷面有效剛性、地盤彈簧常數均依道路橋示方書Ⅴ第3.3.2節之地盤動力變形係數算出之值。
1.震度法之設計水平震度
         用平時及震度法之基礎設計所設定之樁基礎彈簧,算出之固有週期結果,設計水平震度如表六所示。
2.地震時極限側向強度法之設計水平震度
         依地震時極限側向強度法之耐震設計,針對類別Ⅰ、Ⅱ之地震動,與震度法同樣之算法,求得設計水平震度如表七所示。
(三)液化之判別
         如圖二所示,針對地下水位以下之第1砂性土層,依道路橋示方書Ⅴ第7.5節及第7.6節,施行液化之判別。此時地盤面之水平震度,對於類別Ⅰ、Ⅱ之地震運動,分別用khc=0.40,0.60(Ⅲ類地盤)。
         由此該砂性土層之土壤常數之低減係數DE,對於類別Ⅰ、Ⅱ之地震動,全層均為1/3。再者,該低減係數之值,適用於地震時極限側向強度法之耐震設計,於震度法用高1階DE=2/3(道路橋示方書Ⅴ第7.6節)。另考慮液化時,關於砂性土層之水平方向地盤反力係數kH,水平地盤反力之上限值PHU,算承載力時之最大周面摩擦力fI,依規定降低土壤常數(道路橋示方書Ⅴ第7.2節)。

四、橋墩之耐震設計

         橋墩結構體用平時之設計、震度法以及地震時極限側向強度法,施行耐震設計。茲僅將地震時極限側向強度法之結果示於表八。於橋軸垂直方向,如該表所示,PU>1.5kheW,對於設計水平震度,為一具有足夠大之極限水平強度之壁式橋墩。
表八 依地震時極限側向強度法之橋墩結構體耐震設計結果

五、依震度法之基礎耐震設計

         用地震時極限側向強度法設計之前,先施行平時載重之設計以及震度法之耐震設計,將基礎構造諸元素(基礎尺寸、樁支數、樁斷面等)統一設定之。依震度法之耐震設計結果如表九所示。
         樁之主鋼筋決定於橋軸方向地震時,此時之彎矩圖示如圖三。再者,樁與基礎之接合處,主鋼筋在基礎內之錨碇長度應為L0(所需錨碇長度)+D(樁徑)/2以上。
表九 依震度法之基礎耐震設計結果


<未完待續>